Виллы представления высшего качества подъем лифта стабилизированной небольшой домашний
подъем лифта дома MRL виллы стабилизированного представления 400kg небольшой
Тип небольшой лифт тракции дома виллы вид общественного оборудования лифта, безопасен, надежен, идеален и удобен, с модным типом, простым обслуживанием, сбережениями энергии и защитой среды. Лифт дома виллы требуют низкой ямы и легкое для установки.
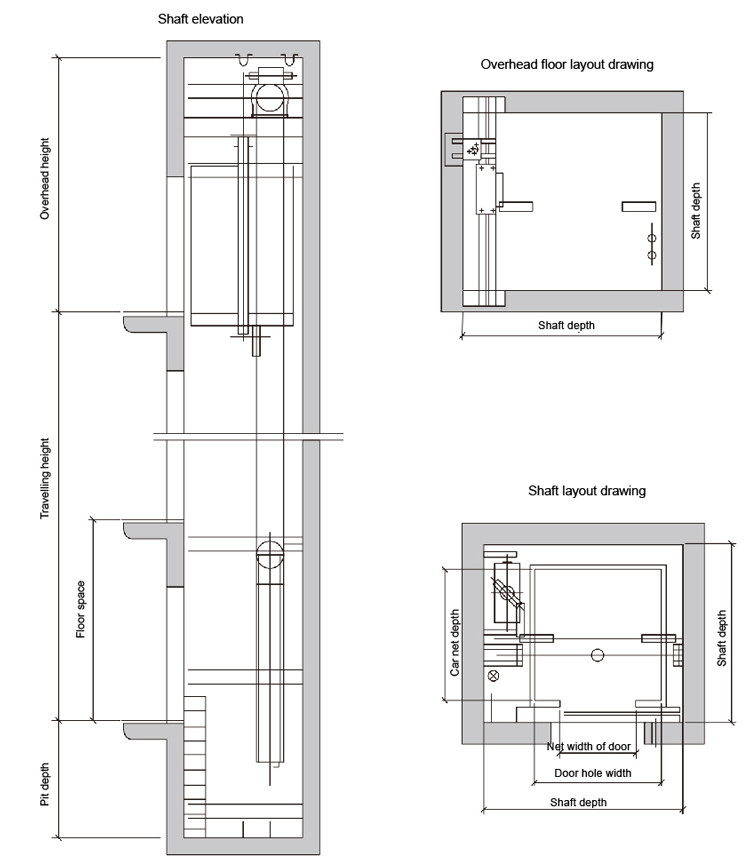
Эскиз конструкции

СТАНДАРТНАЯ КОНФИГУРАЦИЯ



вопросы и ответы
1. Опасно для отказа источника питания внезапно во время хода лифта?
Если оно происходит, то лифт автоматически остановит должное к электрическому и механическому предохранительному устройству. В случае отказа источника питания, тормозы лифта будут автоматически принятый. К тому же, отделы электропитания как запланированное повреждение, прежнее извещение также работают.
2. Завещайте нас быть ушибленным когда оно закрыло внезапно?
В заключительном процессе, если люди касаются двери залы, то дверь лифта автоматически повторит старт без любой опасности. С анти- зажимая переключателем, как только ворота касались, это действие переключения делает лифт неспособной быть закрытым и даже открытым заново. К тому же, замыкающее усилие также доступно здесь.
3. Как бег лифта?
Лифты управляются с веревочкой провода противовесу через передачу с желобчатым ведущим шкивом (трактора), делать поднимает и опускает на ведущий брус.
4. Вы имеете cerifications?
Да, мы делаем с сертификатами ISO9001/CCC/CE для u.