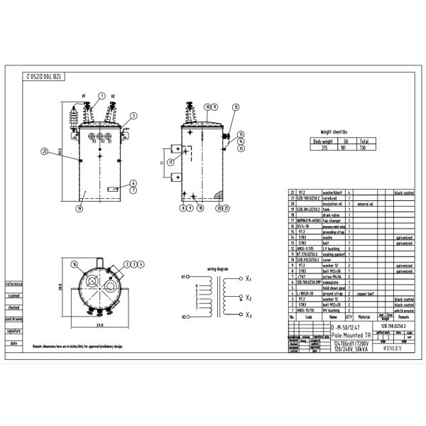
Трансформатор однофазного питания 50кВ распределение от 12470в до 120в
энергоэффективный однофазный распределительный трансформатор, установленный на столбе, предназначенный для надежной работы и надежности, с тщательным учетом факторов окружающей среды.Этот трансформатор подходит как для внутренних, так и для наружных применений, обеспечивая повышенную надежность и защиту от сбоев критического оборудования.это идеальный выбор для широкого спектра приложений и предприятий.

Особенность
структура

Основные данные
| Фаза | Однофазная |
| Мощность | 50 кВА |
| Первичное напряжение | 7200/12470GrdY Замороженный провод (2 проволоки) |
| Первичный BIL | 95 кВ |
| Вторичное напряжение | 120/240В (L-L-N) |
| Частота | 60 Гц |
| Повышение температуры | 65°С |
| Насильственный воздух (Вентиляторы) | Никаких |
| Первичная изоляция | Порцелановые высоковольтные корпуса - двойные первичные корпуса |
| Вторичная изоляция | (3) Покрытия |
| Изолирующая жидкость | Минеральное масло - жидкость, не содержащая ПХБ |
| Маркировка уровня масла | Внутренние |
| Класс охлаждения | ОНАН |
| Устройство для снятия давления | Автоматический |
| Заполнительный клапан | Включается |
| Вытяжной клапан с/обработником | - |
| Задерживатели перенапряжений | Ограничитель молнии на первичном терминале H1 |
| Устройство для установки блокировщика перенапряжения | Условия монтажа молниезащитного устройства на первичном терминале H2 |
| Никаких потерь нагрузки | 125 Вт |
| Потеря полной нагрузки | 490 Вт |
| Эффективность @ 100% нагрузки | 98.85% |
| Импеданс (приблизительно) | 20,1% |
| Материал намотки | Медь |
| Размеры | 22 х 25 х 44 |
| Вес | 601 фунт |
| Рейтинги | Соответствует стандарту ANSI/IEEE C57.12.20 |
Рисунки продукции

Спецификации
| 10kva-333kva Однофазный трансформатор, погруженный в масло | ||||||
| Номинальная капитализация ((kVA) | Высокий | Низкое напряжение (v) | Символ соединения | Стандартный | Импеданс короткого замыкания ((%) | Эффективность |
| Напряжение ((v) | (%) | |||||
| 10 | 4160 7200 12000 12470 13200 13800 19920 24940 34500 |
110 220 230 400 480 |
II0,II6 | IEEE/ANSI/DOE | 10,8 - 4% | 98.7 |
| 15 | 98.82 | |||||
| 25 | 98.95 | |||||
| 37.5 | 99.05 | |||||
| 50 | 99.11 | |||||
| 75 | 99.19 | |||||
| 100 | 99.25 | |||||
| 167 | 99.33 | |||||
| 250 | 99.39 | |||||
| 333 | 99.43 | |||||
Аксессуары

Процесс производства



Частые вопросы
1Вопрос: Можно заказать образец?
О: Да, мы приветствуем заказ образца для проверки качества.
2Вопрос: Сколько времени?
О: Время массового производства 15-25 дней.
3. Q: Сколько времени гарантия?
Ответ: 24 месяца с B/L. Если есть какие-либо проблемы с аксессуарами, просто предоставьте фотографии поврежденного аксессуара, тогда мы предоставим бесплатный сервис.мы предоставим легко поврежденные аксессуары бесплатно. мы также можем предоставить техническую поддержку, если вам понадобится.
4Вопрос: Есть ли OEM/ODM?
A: Да, это так! Мы являемся производителем с нашей собственной командой исследований и разработок, мы можем настроить продукцию в соответствии с рисунком или требованиями клиента.
Услуги на заказ:
a. настраиваемый цвет и специальная функция.
b. Коробка на заказ.
в. Напечатать логотип клиента.
d. Ваши другие идеи о продукте, мы можем помочь вам разработать и ввести их в производство.
5Вопрос: Как контролировать качество продукции?
A: Наша компания владеет основной технологией, все виды продукции имеют сертификат CE. У нас есть профессиональные инженеры. Рабочие строго обязаны производить продукцию в соответствии с чертежами.Каждый процесс имеет технических инструкторовМы будем регулярно проверять производство, проводить тесты производительности продукции во время производства и всеобъемлющие тесты качества после завершения производства.